• 背景色変更
  • 文字サイズ

今治24-077

【物件No.今治24-077】
売戸建

  • 売戸建
  • まちエリア
  • 市内中心部

【取り扱い事業者名】有限会社タテイシ産業

市内中心部の閑静な住宅地。

【物件No.今治24-077】

価格 1500万円
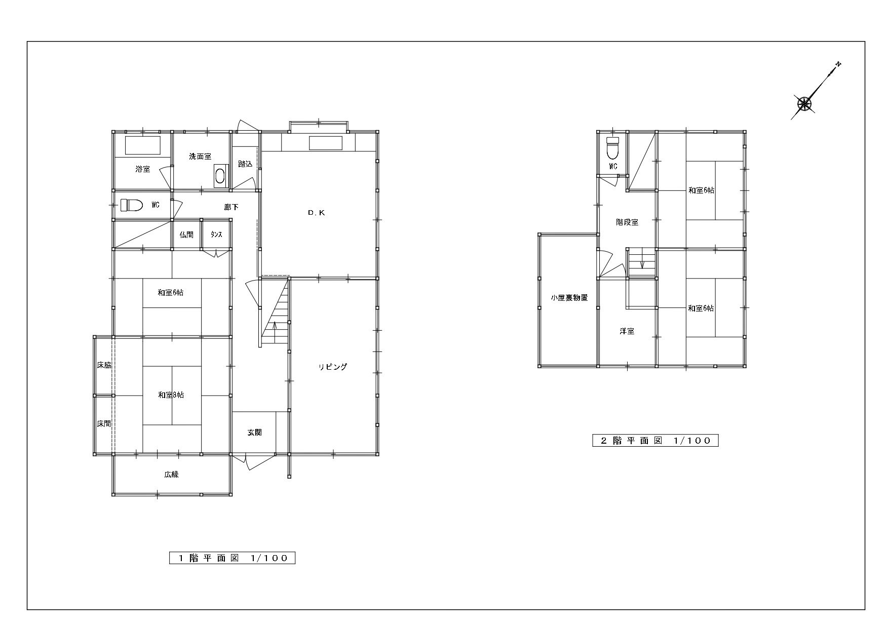
築年月 1996年8月建築 間取り 4LK
所在地 愛媛県今治市北宝来町
交通 今治駅kら0.35km、今治市役所0.5km、吹上小学校1.5km、日吉中学校0.7km、Aコープ0.7km
建物面積 126.33㎡ 土地面積 232.57㎡




物件詳細

物件種目 売戸建 借地期間/地代(月額)
権利金 敷金/保証金
維持費等 その他一時金
設備 電気, 都市ガス, 上水道, 下水道
こだわりポイント
備考
私道負担面積 109.81㎡ 階建/階 2階建 / 2階
リフォーム/リノベーション
駐車場 建物構造 木造スレート葺
土地権利 所有権 都市計画 市街化区域
用途地域 商業 接道状況 南東 5.9m
建ぺい率 80% 容積率 400%
地目 宅地 地勢
国土法届出 国土法届出不要 セットバック
建築確認番号
現況 引渡し 相談
仲介手数料 510000円
情報公開日 2025年4月10日 次回更新予定日 随時
※表中に表示されていない項目については、この物件の取扱業者にご確認ください。

周辺地図




この物件の取扱業者

物件の見学や、その他詳細のお問い合わせは下記までご連絡ください。

有限会社タテイシ産業

TEL:0898-35-2336

所在地:愛媛県今治市南大門町1丁目4番地1
免許番号:愛媛県知事免許(8)第3736号

にゃびゲーター

-いまばり空き家バンク, まちエリア, 売買物件, 市内中心部

© 2024 いまばり暮らし