【物件No.今治25-070】
売戸建
【取り扱い事業者名】トータルプランニングサービス株式会社
大新田町5の2階建ての家
【物件No.今治25-070】
| 価格 | 460万円 | ||||
|---|---|---|---|---|---|
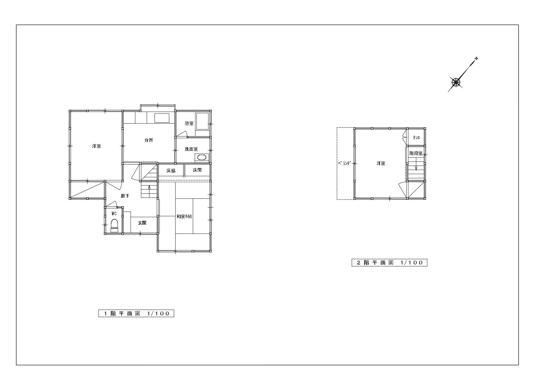
| 築年月 | 1982年8月建築 | 間取り | 3DK | ||
| 所在地 | 愛媛県今治市大新田町 | ||||
| 交通 | JR今治駅2.6km、今治市役所2.4km、近見小学校1.0km、近見中学校1.8km、今治北IC1.9km | ||||
| 建物面積 | 64.75㎡ | 土地面積 | 104.39㎡ | ||
物件詳細
| 物件種目 | 売戸建 | 借地期間/地代(月額) | |
|---|---|---|---|
| 権利金 | 敷金/保証金 | ||
| 維持費等 | その他一時金 | ||
| 設備 | 電気, プロパンガス, 上水道, 下水道, 電話 | ||
| こだわりポイント | |||
| 備考 | |||
| 私道負担面積 | 階建/階 | 2階建 / 2階 | |
|---|---|---|---|
| リフォーム/リノベーション | |||
| 駐車場 | 有 / 1台 | 建物構造 | 木造瓦葺 |
| 土地権利 | 所有権 | 都市計画 | 市街化区域 |
| 用途地域 | 1種住居 | 接道状況 | 南 4.3m |
| 建ぺい率 | 60% | 容積率 | 200% |
| 地目 | 宅地 | 地勢 | |
| 国土法届出 | セットバック | ||
| 建築確認番号 | |||
| 現況 | 空 | 引渡し | 相談 |
|---|---|---|---|
| 仲介手数料 | |||
| 情報公開日 | 2025年12月15日 | 次回更新予定日 | 随時 |
※表中に表示されていない項目については、この物件の取扱業者にご確認ください。
周辺地図
この物件の取扱業者
物件の見学や、その他詳細のお問い合わせは下記までご連絡ください。
トータルプランニングサービス株式会社
TEL:0898-24-6226
所在地:愛媛県今治市鐘場町1丁目3―7
免許番号:愛媛県知事免許(1)第5807号






