今治の空き家情報

今治25-087

【物件No.今治25-087】
売戸建

  • 売戸建
  • 海エリア
  • 桜井・国分地区

【取り扱い事業者名】株式会社トゥルーハウジング

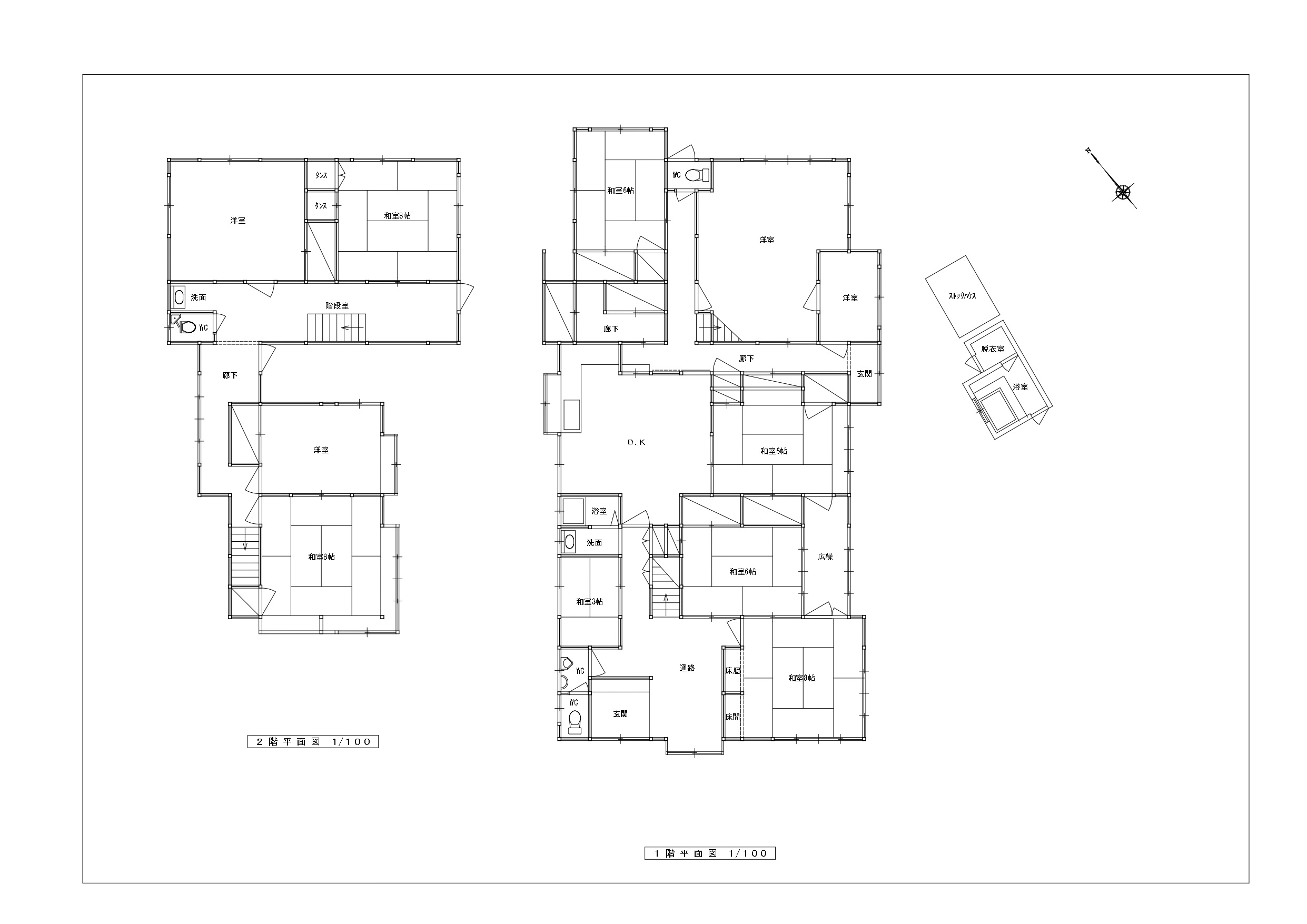
部屋数多数、二世帯,社員寮に適しています

【物件No.今治25-087】

価格 800万円
築年月 間取り 10DK
所在地 愛媛県今治市登畑
交通 伊予桜井駅2.5km、今治市役所7.6km、桜井小学校2.1km、桜井中学校1.9km
建物面積 285.38㎡ 土地面積 347.1㎡




物件詳細

物件種目 売戸建 借地期間/地代(月額)
権利金 敷金/保証金
維持費等 その他一時金
設備 電気, 上水道, 浄化槽, 電話, オール電化
こだわりポイント
備考
私道負担面積 階建/階 1階建 / 1階
リフォーム/リノベーション
駐車場 有 / 5台 建物構造 木造鉄骨造陸屋根2階建
土地権利 所有権 都市計画 調整区域
用途地域 接道状況 南西 2.6m 公道
建ぺい率 70% 容積率 200%
地目 宅地 地勢
国土法届出 セットバック
建築確認番号
現況 引渡し 相談
仲介手数料 330000円
情報公開日 2026年3月10日 次回更新予定日 随時
※表中に表示されていない項目については、この物件の取扱業者にご確認ください。

周辺地図




この物件の取扱業者

物件の見学や、その他詳細のお問い合わせは下記までご連絡ください。

株式会社トゥルーハウジング

TEL:0898-35-3575

所在地:愛媛県今治市衣干町1丁目1-15
免許番号:愛媛県知事免許(02)第005430号

にゃびゲーター

今治市 移住相談窓口

今治市への移住についてのご質問・ご相談を受け付けています。お気軽にお問い合わせください。

フォームでお問い合わせ

お電話でお問い合わせ

地域政策局 地域振興課

受付時間:平日 9:00~12:00/13:00〜17:00

移住相談会・オンライン移住相談会
〈完全予約制〉

今治市窓口、またはオンラインで移住相談会を実施しています。お電話かメールでご予約ください。