- 背景色変更



- 文字サイズ



【取り扱い事業者名】トータルプランニングサービス株式会社


| 価格 | 55万円 | ||||
|---|---|---|---|---|---|
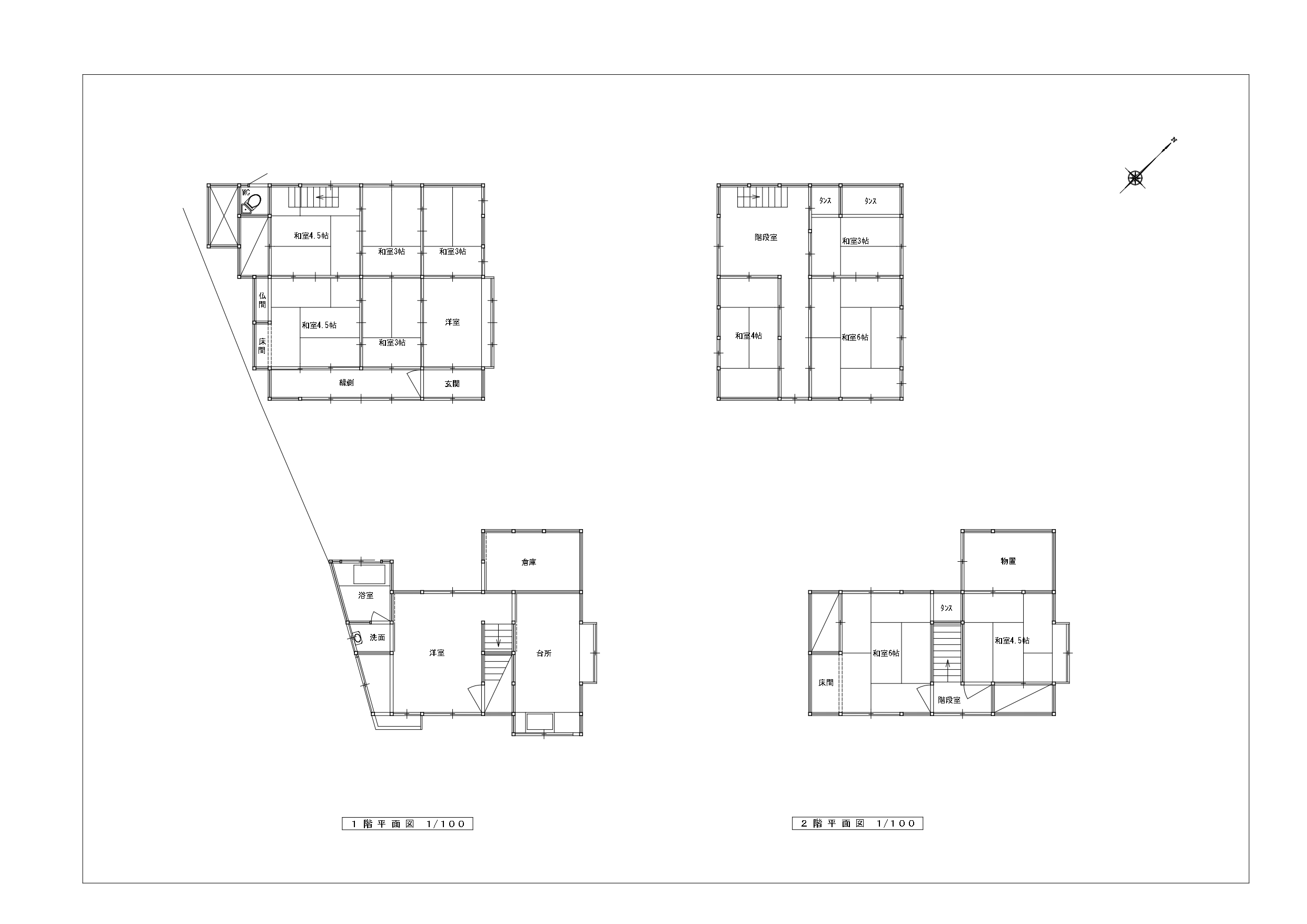
| 築年月 | 間取り | 12DK | |||
| 所在地 | 愛媛県今治市関前岡村 | ||||
| 交通 | 関岡村港0.1km、関前支所0.14km、岡村小学校0.45km、関前岡村中学校0.45km | ||||
| 建物面積 | 52.89㎡ | 土地面積 | 85.34㎡ | ||
| 物件種目 | 売戸建 | 借地期間/地代(月額) | |
|---|---|---|---|
| 権利金 | 敷金/保証金 | ||
| 維持費等 | その他一時金 | ||
| 設備 | 電気, プロパンガス, 上水道, 下水道, 電話 | ||
| こだわりポイント | |||
| 備考 | |||
| 私道負担面積 | 階建/階 | 2階建 地下1階建 / 1階 | |
|---|---|---|---|
| リフォーム/リノベーション | |||
| 駐車場 | 無 | 建物構造 | 木造瓦葺 |
| 土地権利 | 所有権 | 都市計画 | 区域外 |
| 用途地域 | 接道状況 | ||
| 建ぺい率 | 容積率 | ||
| 地目 | 宅地 | 地勢 | |
| 国土法届出 | 国土法届出不要 | セットバック | |
| 建築確認番号 | |||
| 現況 | 空 | 引渡し | 相談 |
|---|---|---|---|
| 仲介手数料 | 330000円 | ||
| 情報公開日 | 2025年8月29日 | 次回更新予定日 | 随時 |
物件の見学や、その他詳細のお問い合わせは下記までご連絡ください。
TEL:0898-24-6226
所在地:愛媛県今治市鐘場町1丁目3―7
免許番号:愛媛県知事免許(1)第5807号
今治市への移住についてのご質問・ご相談を受け付けています。お気軽にお問い合わせください。


地域政策局 地域振興課
受付時間:平日 9:00~12:00/13:00〜17:00

今治市窓口、またはオンラインで移住相談会を実施しています。お電話かメールでご予約ください。